Verktaki er Héraðsverk og eftirlit með þeim er í höndum Sigurðar Hlöðverssonar frá Framkvæmdasýslu ríkisins og Gunnars Larssonar frá Mannvit. Áætlað er að heildarframkvæmdum ljúki 15. júní 2018 en vinnu við farveg og brýr ljúki 5. desember 2017. Unnið verður að umhverfisfrágangi vorið 2018 og mun honum ljúka 15. júní.
Áætlað er að framkvæmdum við brú við Strandgötu ljúki 1. júlí næstkomandi. Meðan framkvæmdir standa yfir vegna brúarinnar aka vegfarendur um hjáleið.
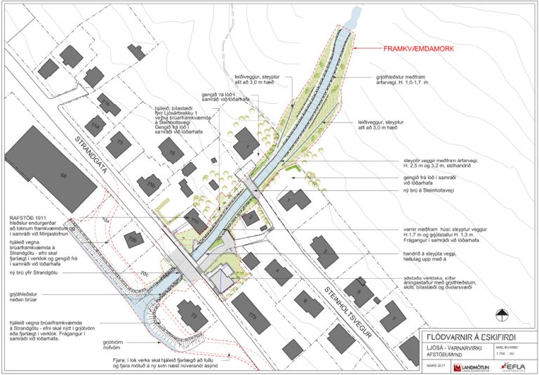
Framkvæmdirnar snúa að gerð varnarvirkja ásamt mótvægisaðgerðum. Varnarvirkin fela í sér nýjar brýr yfir Strandgötu og Steinholtsveg, steypta leiðiveggi og farveg með hlöðnum og steyptum veggjum.
Mótvægisaðgerðunum er ætlað að laga varnarvirkin að umhverfi, sérstakt tillit verður tekið til nálægðar við byggð og kostir nýttir til aukinnar útiveru og aðgengis að náttúru meðfram árfarveginum. Sem hluti af þessu verður gerður nýr áningarstaður austan megin árinnar við Strandgötu.

