Uppbygging Stríðsárasafnsins hefst – saga lifnar við
Undirbúningur að uppbyggingu Stríðsárasafnsins á Reyðarfirði stendur nú yfir og áætlað er að fyrsti áfangi verksins verði opnaður sumarið 2026. Uppbyggingin markar nýtt upphaf fyrir Stríðsárasafnið og styrkir stöðu þess sem einstaks minnisvarða um stríðsárin á Íslandi.
Þar sem sagan lifir áfram
Stríðsárasafnið á Reyðarfirði varpar ljósi á merkilegan hluta af sögu Austfjarða á tímum síðari heimsstyrjaldarinnar. Á Reyðarfirði var herstöð Breta og síðar Bandaríkjamanna starfrækt á Austurlandi, og safnið varðveitir fjölbreyttar minjar frá þeim tíma. Safnið veitir einstaka innsýn í hvernig stríðið hafði áhrif á lífið á Íslandi og er vinsæll viðkomustaður fyrir þau sem vilja kynnast þessari spennandi og viðburðaríku sögu.
Upphaf safnsins má rekja til áhugamanna sem söfnuðu minjum og gripum frá síðari heimsstyrjöldinni. Með kaupum Fjarðabyggðar á safni Hinriks Steinssonar árið 2021 bættust við fjölmargir merkir gripir sem dýpka frásögnina og gefa safninu nýtt líf.
„Stríðsárasafnið gegnir mikilvægu hlutverki í að varðveita og miðla sögunni á lifandi hátt. Þar fá gestir innsýn í áhrif stríðsáranna á líf og samfélag á Austfjörðum og hvernig sagan tengist samtímanum,“ segir Jóna Árný Þórðardóttir, bæjarstjóri Fjarðabyggðar.

Framkvæmdir hefjast á Stríðsárasafninu
Haustið 2022 skall á mikið óveður á Austfjörðum sem olli miklu tjóni á húsnæði safnsins og tveimur bröggum við það. Braggarnir skemmdust svo mikið að ekki þótti ráðlegt að endurbyggja þá, og safnið varð að loka sumarið 2023.
Nú liggur fyrir áætlun um endurbætur og uppbyggingu safnsins og tryggð hefur verið fjármögnun fyrir fyrsta áfanga verksins, samtals 106,8 milljónir króna. Þar af koma 44,8 milljónir króna frá Fiskeldissjóði, 32 milljónir króna í tjónabætur frá TM og 30 milljónir króna frá Náttúruhamfaratryggingum.

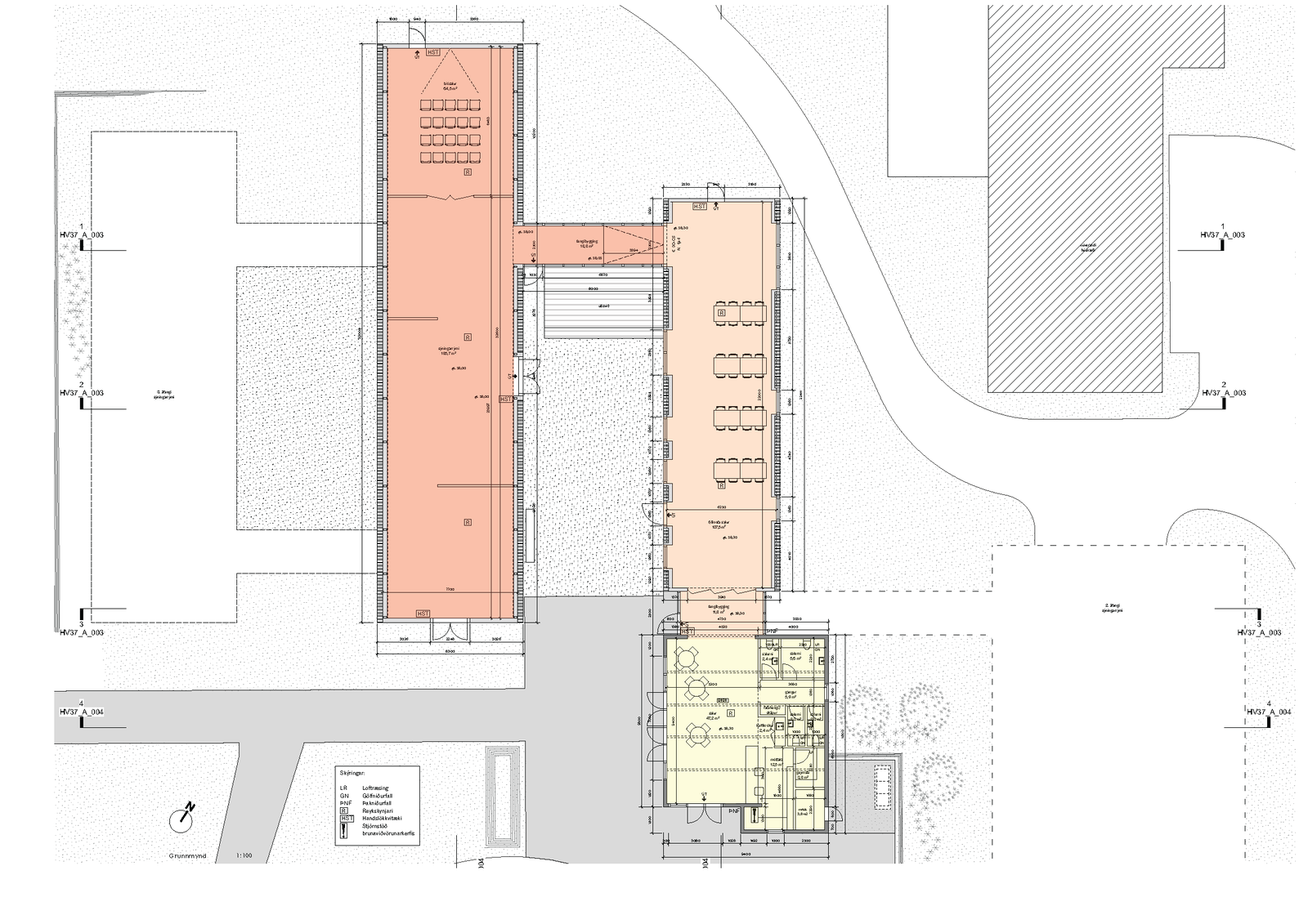
Fyrsti áfangi þessarar uppbyggingu er nýtt 80 fermetra móttökuhús og sýningarbraggi, ásamt tengigöngum. Form móttökuhússins vísar í braggaformið en byggingin er þó ekki braggi. Hún leikur sér með formið og myndar þannig hluta af heildinni en sker sig engu að síður úr. Móttökuhúsið er tengt núverandi bragga með tengigangi og má segja að það stækki inn í braggann, sem er skilgreindur sem fjölnota rými. Gluggar núverandi bragga eru stækkaðir og teknir niður á ákveðnum stöðum og veita aukna birtu og tengingu við umhverfið.
Nýr braggi, samhliða þeim núverandi, er sýningarhús Stríðsárasafnsins. Þessir samliggjandi braggar mynda skjólsælt útisvæði sem tilvalið er til hátíðahalda og viðburða. Opið verður úr báðum bröggum á útisvæði.
Síðari áfangar uppbyggingarinnar eru í fyrsta lagi stærri braggi sem hýsir sýningu fyrir bíla og stærri muni safneignarinnar. Í öðru lagi er að lokum áætlaður annar braggi samhliða sýningarbragga fyrsta áfanga sem stækkar sýningarsvæði Stríðárasafnsins enn fremur.
„Við erum að leggja grunn að öflugu safni sem endurspeglar sögu svæðisins og styrkir menningararf okkar,“ segir Jón Björn Hákonarson, forseti bæjarstjórnar Fjarðabyggðar. „Þetta er mikilvægt skref í að efla menningu og ferðaþjónustu í Fjarðabyggð og skapa lifandi tengsl við söguna.“
Framtíðarsýn í þremur áföngum
Uppbyggingin verður í þremur áföngum.
- 1. áfangi: Þjónustubygging, nýr braggi og endurbætur á núverandi húsnæði – til sýnis sumarið 2026.
- 2. áfangi: Sýningarhús fyrir bíla og tæki austan við núverandi bragga ásamt móttökuhúsi og tengigangi.
- 3. áfangi: Nýr sýningarbraggi vestan við núverandi hús ásamt tengigöngum.

Teiknistofan Stika sér um hönnun nýs sýningarhúsnæðis og þjónusturýmis, og samhliða fer fram hönnun nýrrar sýningar þar sem munir úr safni Hinriks Steinssonar fá verðugan sess.
„Það er ánægjulegt að sjá verkefnið taka á sig mynd,“ segir Ragnar Sigurðsson, formaður bæjarráðs Fjarðabyggðar. „Uppbyggingin mun efla safnið sem menningarlegan áfangastað og skapa ný tækifæri til að miðla sögu og menningu svæðisins.“
Arkitektar verksins er Teiknistofan Stika, Landmótun sá um landslagshönnun og burðarþols-, lagna-, raflagna- og brunahönnun var í höndumCowi verkfræðistofa

Saga sem lifir áfram
Með enduruppbyggingunni er stefnt að því að Stríðsárasafnið verði ekki aðeins staður fyrir sýningar heldur lifandi vettvangur fræðslu og viðburða. Þar verður hægt að kynnast áhrifum stríðsins á daglegt líf hermannanna og þeim sögum sem tengja alþjóðlega viðburði við íslenskan veruleika.
Stríðsárasafnið á Reyðarfirði heldur áfram að vera mikilvægur hluti af menningar- og sögulífi samfélagsins og opnar ný tækifæri til að miðla fortíðinni til framtíðar.

